Ref: PH700363

Sliema
Penthouse

675,000


2 Bedrooms


2 Bathrooms

Print Page

Description

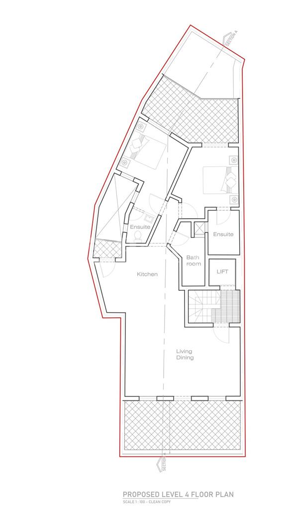
Set in one of Sliema’s most prominent and sought-after areas, this fourth floor PENTHOUSE is being offered for sale on plan and will be delivered in a finished state, excluding bathrooms and internal doors, allowing the buyer to add their own personal touch. The property features a bright and spacious open-plan living, dining, and kitchen area, two double bedrooms with the master enjoying its own ensuite bathroom and the second bedroom an ensuite toilet, and a main bathroom. Spacious terraces provide the perfect space for outdoor relaxation. Sold freehold, this property presents an excellent opportunity to secure a stylish home in a prime Sliema location, close to all amenities and everyday conveniences.

Property Features

Reference Number: PH700363
Property Type: Penthouse
Property: For Sale
Bedrooms: 2
No of Bathrooms: 2
Bathrooms en suite: 1
Toilets en suite: 1
Kitchen: 1
Dining Room: 1
Living Room: 1
Hallway: 1
Terraces: Yes
Lift : Yes
Floor Level: 4
Roof: Use of Roof
Floorplans: Yes
Type of layout: Open plan

Contact Agent

Contact the listing agent by getting in touch by any of the following options:

Related Properties

Swieqi<br>Penthouse

  10

Swieqi
Penthouse

€625,000


3 Bedrooms


3 Bathrooms

Ref: PH700117

Gharghur<br>Penthouse

  1

Gharghur
Penthouse

€695,000


3 Bedrooms


3 Bathrooms


Parking Available

Ref: DP600048

St Julians<br>Penthouse

  1

St Julians
Penthouse

€690,000


3 Bedrooms


2 Bathrooms

Ref: PH500121

List your property with us and get a FREE valuation

 

If you are thinking of SELLING or RENTING your property, simply list with us and get a FREE VALUATION with one of our highly experienced negotiators. Our fully trained team bring a wealth of knowledge about the Maltese real estate market and all the recent transaction history to guide you to the right price that will get your property noticed. Let us help you get your property SOLD or RENTED fast!

 

Thank you, your request was successfully submitted, we will be in touch shortly.

Oops, it looks like there's an error with your submission, please check all fields and try again. If the form still doesn't send, please email us directly on perry@perry.com.mt.

Here are some of the brands we work with…